聯系人:陳經理
手機:135-9784-4555
手機:139-9786-7123
微信:135-9784-4555
地址:湖北省隨州市南郊平原崗程力汽車工業園
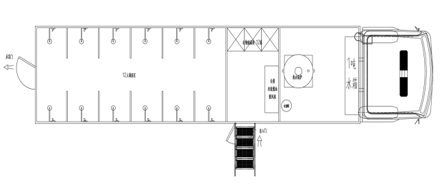
汕德卡淋浴車由4*2底盤改裝,后部制作三明治保溫箱體,內部可容納8-12人同時淋浴,配備大功率熱水鍋爐、儲水箱和水泵,可滿足車內人員同時淋浴使用,同時配備外接水袋和抽水泵;車內設置更衣區,更衣區內可為每個淋浴人員配備**儲物柜。
汕德卡淋浴車長度約為12米,寬度為2.55米,高度為3.65米,后部箱體長約9.6米,箱體分為三個部分,前部為設備區,設備區內安裝大功率熱水鍋爐和1噸儲水箱;中間區域為更衣區,更衣區配備熱油加熱系統、**衣柜和更衣凳,方便人員更換衣物;后部區域為8-12人淋浴區,淋浴區淋浴位數量可根據需求設置。
底盤型號:ZZ5186XXYN711GF1 ,發動機型號:MC07.31-60,發動機功率:228KW,驅動形式:4*2,軸距:7100,**車速:89km/h,總質量:16000kg,外形尺寸:12000*2550*3650mm,乘坐人數:2,3人



服務熱線
服務熱線
手機網站
微信公眾號